A robust, stress-tested system.

Approach

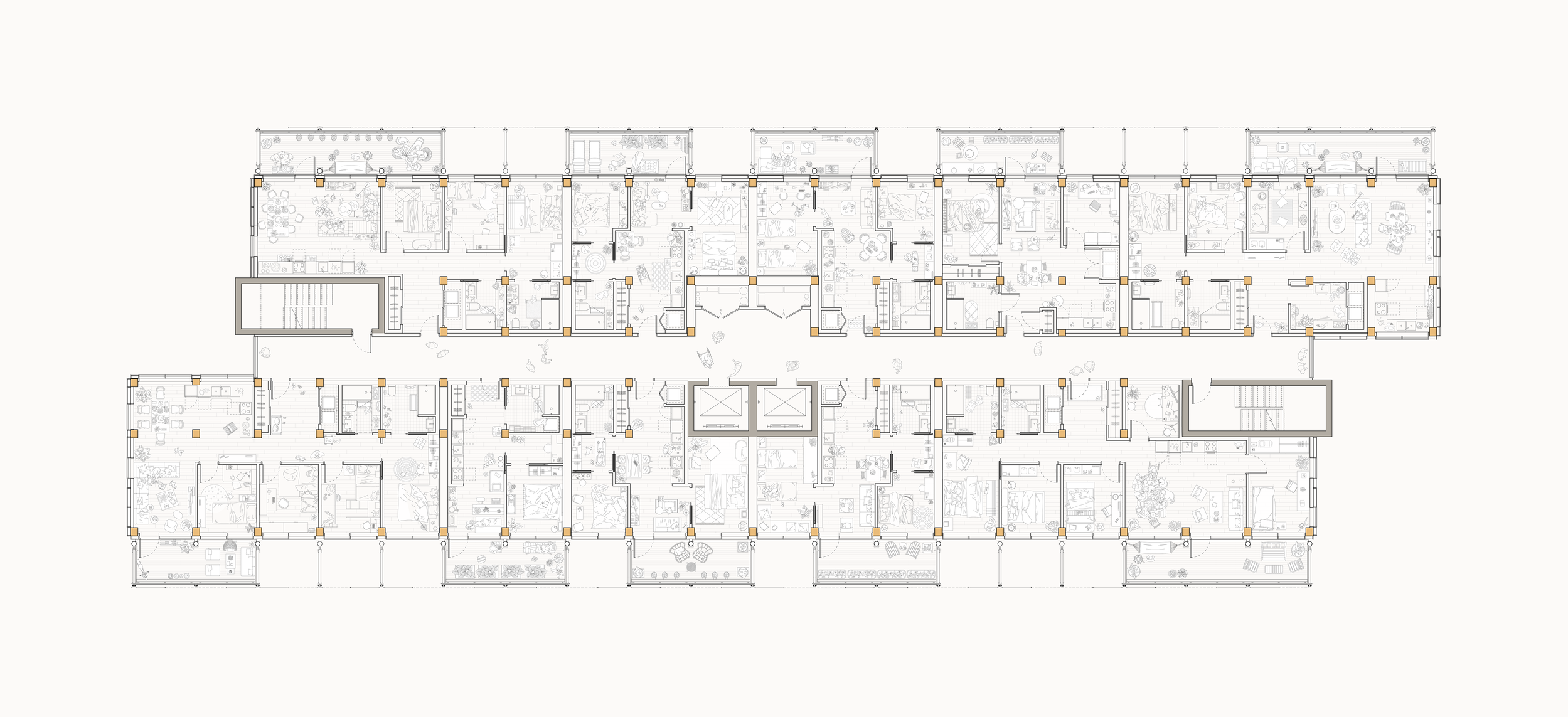
Grid

At the heart of this system—key to efficiency during design and construction, and livability for residents during the building’s lifespan—is a fully rationalized grid.  

Learn more

Components

The base unit of our system is the functional module—washroom, bedroom, kitchen, etc. Standard units are understood as a combination of basic functional modules.

Learn more

Modules

Our system balances scalability and flexibility by establishing a limited catalogue of mass timber elements, along with standard connections, wall, and partition assemblies.

Learn more

Services

Rationalizing building services creates an efficient vertical stack, which will streamline design and installation while allowing flexibility within the modular framework.

Learn more

Assembly

The modular mass timber system brings together structure, planning, enclosure, and services in a clear and repeatable assembly logic.

A rigorous grid establishes dimensional coordination across all components, allowing structural elements, façade systems, and interior partitions to align within a common framework.

Modular blocks within this grid support a range of unit configurations while maintaining consistency at the building scale. Building services are integrated as coordinated layers, responding to the structural and planning logic rather than driving it.

By organizing the system in this way, individual components are able to operate together as a cohesive and optimized whole—supporting constructability, adaptability, and scalable delivery.

Accelerated by Intelligent Tools

An interactive design analytics interface that combines parametric design modelling with real-time code compliance analysis for the Modular Timber Housing system.

Encapsulated Mass Timber Construction

BCBC 2024

This research is predicated upon mass timber construction.

The study considers a sample building that maximizes the allowable exposed mass timber according to BC Building Codes 2024.

For Occupancy Group C (Residential), the encapsulation requirement is 0 min for a building up to 8 storeys. This base assumption allows the definition of spans and dimensions of fully exposed structural members with a 2-hour fire rating.

Massing

The building form used to develop the modular housing system is defined as:

8 storeys maximum (overall), to comply with the maximum allowable height of exposed mass timber structure (with no or limited encapsulation), at a typical 3.20m floor to floor height

A concrete podium base forming the first and possibly second storey would host the building entrances, ground floor program, and technical areas

A typical width of about 18m in a double-loaded corridor configuration

Maximum wing length of 65–70m, corresponding to an XL standard floor plate.

Case Study

Validated against real project constraints.

To test the real-world viability of the system, we applied the modular mass timber framework to two existing high-density residential projects, comparing building form, unit mix, functional area, cost, construction time, and embodied carbon against the original designs.

In other words, we used our system—the grid, functional blocks, material, and pre-engineering—to replicate these buildings.

We then compared the initial design and our modular mass timber version, specifically the: building form, unit mix, functional area, predicted cost and construction time, and embodied carbon.

Homes produced through the system prioritize everyday livability.

Larger living spaces, improved daylight and ventilation, and generous entryways and circulation comfortably support families and shared living arrangements. Larger units incorporate additional bathrooms to better accommodate all residents.

Our system resulted in more livable homes—while outperforming the baseline for cost, schedule, and sustainability.

This system achieves typical development goals

Regular building form

The modular system supports typical multi-family massing while achieving a more compact and efficient form.

Generous functional area

Optimized core and service strategies give more area back to living spaces, creating more comfortable, flexible, and desirable units.

Desirable unit mix

The grid rationalizes the floorplate, supporting a diverse mix of unit types.

While significantly improving performance across key metrics

Maintaining budget

This can be achieved at a budget within 2–5% of a typical (wood frame or concrete) construction method.

Accelerating construction

The use of prefabricated elements could shorten the construction time by 10–15%.

Reducing embodied carbon

Mass timber as the dominant material would lower the project’s global warming potential to 45% of the local benchmark.

Explore the system: